Kvandrova hiša

Prenovljena tradicionalna hiša Kvandrova v Mošnjah, arhitekti Archinauts, pogled na vhod.
Leto
2014
Lokacija
Mošnje, Radovljica
Tip
Tradicionalna kmečka hiša
Velikost
371,70 m² BTP
Avtorji
Nina Komac Dečman​

Projekt Kvandrove hiše ohranja tradicionalno arhitekturo in materialnost stare stavbe ter jo dopolnjuje z novo strešno konstrukcijo in sodobno mansardno ureditev.

Zgodovina

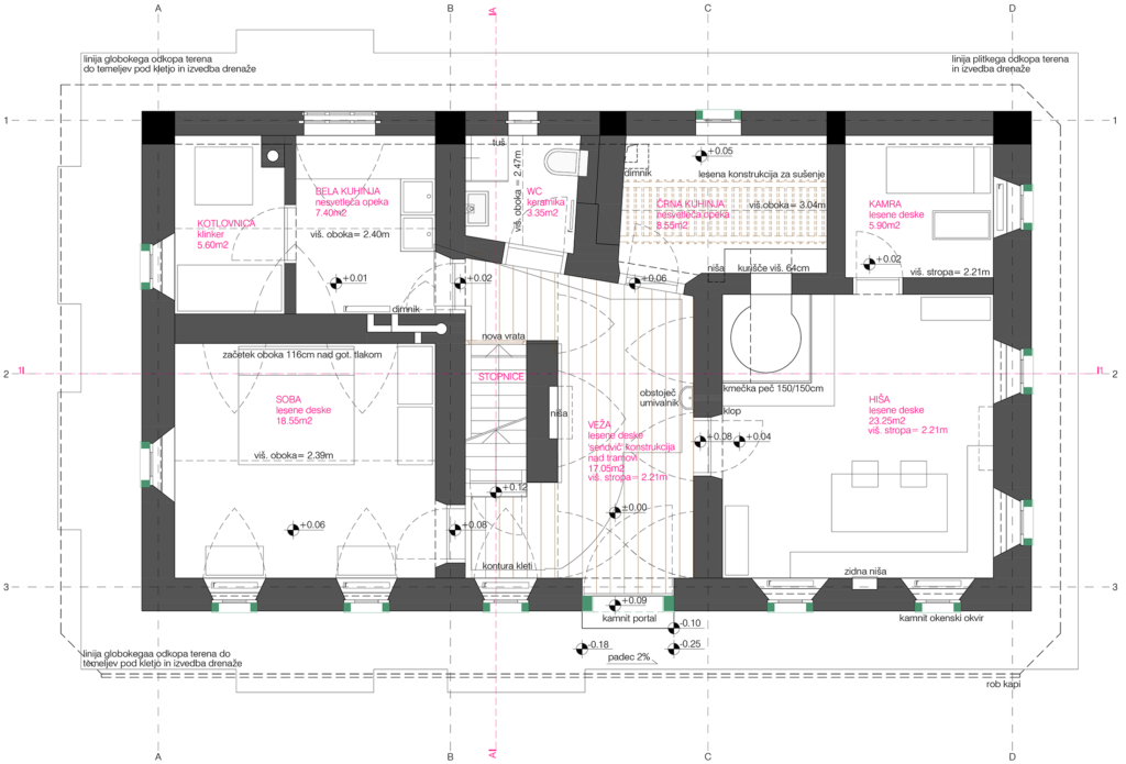
Vas Mošnje je bila med 2. svetovno vojno požgana, zato je večina hiš zgrajena po letu 1945. Kvandrova hiša, Mošnje 9, je preživela požar in predstavlja dediščino bivalne kulture in načina življenja Mošnjanov iz druge polovice 18. in 19. stoletja. Osnovna gradbena materiala sta kamen in les, posebnost pa ji daje tudi kamnit portal in okenski okvirji iz zelenega tufa z vstavljenimi kovanimi mrežami. Kmečka hiša ima tradicionalno zasnovo tlorisa z glavno vhodno vežo, črno kuhinjo, ‘hišo’, kamro, shrambo in pleteno sobo v mansardi.

Obseg del

Projekt predvideva rekonstrukcijo in obnovo obstoječega objekta, ter zamenjavo dotrajane drvarnice z leseno garažo za motocikle v skladu s pogoji ZVKDS, lokacijske informacije in željami naročnika. Predvideno je, da se pritličje objekta obnovi na tak način, da se v največji možni meri ohrani zasnova tradicionalne kmečke hiše, v mansardi pa uredi sodoben apartma. V pritličju se v celoti ohrani tradicionalna tlorisna zasnova, ohranijo oz. ponovno izdelajo kot replike obstoječega (kjer rekonstrukcija ni več mogoča) se vsi bistveni arhitekturni elementi (kamnite okenske obrobe, kamniti portali, niše, tlaki, oboki, ometi, stavbno pohištvo…), oblikovna zasnova pa v največji meri spoštuje tradicionalno arhitekturno zasnovo obstoječega objekta. Notranja oprema v pritličnem delu se namesti v skladu z ekspertizo premične kulturne dediščine hiše, ki jo izvede kustos iz Muzeja radovljiških občin v sodelovanju s konservatorji ZVKDS. Za potrebe osvetlitve mansarde sta predvideni dve dodatni strešni okni in osvetlitev iz zahodne čelne fasade. Izvede se nova lesena konstrukcija ostrešja, dimenzionirana na realne obtežbe, ostrešje se izolira in predvidi menjava kritine – špičak v sivi barvi. Ohrani se poziciji obstoječih dimnikov. Obnovljena dimnika sta zidana, ometana ter bele barve. Za potrebe nove peči za ogrevanje se predvidi dodaten dimnik, ki vizualno ne odstopa od obstoječih.

Sanacija

Zaradi dotrajanosti objekta so ponekod poškodovani oboki nad pritličjem, predvidena je sanacija. Klet obstoječega objekta je vlažna, zato je potrebno objekt zaščititi pred vdorom vlage in nadaljnjim propadanjem. Večja prostora v kleti se uredita kot vinska klet in večja soba za druženje.Prenovljeni objekt bo ostal v enakih dimenzijah kot je obstoječi, ohranjena je tudi višina slemena.

Prenova spoštuje dediščino objekta z rekonstrukcijo kamnitih portalov, okenskih obrob in notranjih struktur ter ustvarja prostor, ki povezuje preteklost in sodobno bivanje.

Rekonstrukcija

Rekonstrukcija in prenova objekta Kvandrove hiše je zasnovana tako, da v največji možni meri ohranja tradicionalno funkcionalno zasnovo kmečke hiše. Ohranjena je razporeditev prostorov v pritličju (veža, črna kuhinja, bela kuhinja, hiša, kamra, soba). V shrambi se uredi kopalnica, del obstoječe bele kuhinje pa se uredi v kotlovnico. Ohrani se stara oprema, (skrinje, skledniki, omare, predalniki,…) ki se jo restavrira in razmesti tako, da je prikazana njena nekdanja funkcija. V ‘hiši’ je predvidena klop po obodu prostora.

Mansarda

V mansardi objekta je predviden sodoben apartma z večjim dnevnim prostorom, odprto kuhinjo z jedilnico, spalnico, kopalnico in savno. Zaradi dotrajanosti obstoječe je predvidena zamenjava lesene strešne konstrukcije, izvedba toplotne izolacije in menjava strešne kritine. Streha ostane simetrična dvokapnica naklona 45°. Sleme strehe poteka v smeri daljše stranice objekta. Na strehi ni predvidenih frčad, sta pa za potrebe osvetlitve, poleg obstoječih oken na vzhodni čelni fasadi, predvideni dve strešni okni in nova osvetlitev na zahodni čelni fasadi. Ohrani se poziciji obstoječih dimnikov. Obnovljena dimnika sta zidana, ometana ter bele barve. Za potrebe nove peči za ogrevanje se predvidi dodaten dimnik, ki vizualno ne odstopa od obstoječih.

Sorodna dela